Подключение розеток в кухне играет важную роль в обеспечении безопасности и удобства использования электроприборов. В этой статье мы рассмотрим основные этапы подключения розеток в кухне, а также предоставим пошаговые инструкции и много фотографий процесса установки.




























Шаг 1: Планирование расположения розеток
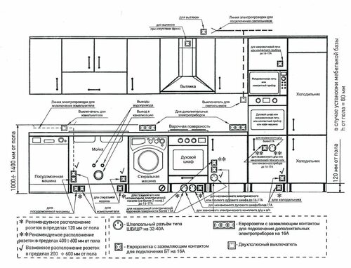
Перед началом установки необходимо тщательно спланировать расположение розеток в кухне. Рекомендуется установить розетки на уровне столешницы, чтобы обеспечить удобный доступ к электроприборам. Планирование расположения розеток также включает выбор места для выключателей и установку защитных устройств от перегрузок.




























Шаг 2: Подготовка к монтажу
Перед установкой розеток необходимо провести подготовительные работы, включающие прокладку электрических проводов и монтаж внутренних коробок для розеток. Этот этап также включает подготовку электрической панели и выбор соответствующих электрических компонентов.




























Шаг 3: Установка розеток
После завершения подготовительных работ можно приступить к установке розеток. На этом этапе необходимо правильно подключить провода к розеткам, убедившись в правильной полярности подключения. Важно соблюдать все нормы и правила безопасности при работе с электричеством.




























Шаг 4: Проверка и тестирование
После завершения установки розеток необходимо провести проверку и тестирование работы электрических цепей. Это позволит убедиться в правильном подключении и отсутствии неисправностей. Рекомендуется также протестировать работу розеток с использованием различных электроприборов.
После завершения всех этапов установки розеток в кухне можно быть уверенным в безопасности и удобстве использования электроприборов. Надеемся, что наши пошаговые инструкции и фотографии помогут вам успешно подключить розетки в вашей кухне.