Расположение розеток на кухне является ключевым моментом при проектировании электрической системы. Правильное размещение розеток обеспечит удобство использования бытовой техники и обеспечит безопасность в помещении.



































Особенности правильного расположения розеток
При проектировании расположения розеток на кухне следует учитывать несколько важных аспектов. Во-первых, необходимо предусмотреть достаточное количество розеток для подключения всех электроприборов, которые будут использоваться на кухне. Во-вторых, розетки должны быть размещены на удобном уровне, чтобы обеспечить легкий доступ к ним при использовании техники. Наконец, важно учитывать безопасность и правила электробезопасности при установке розеток.
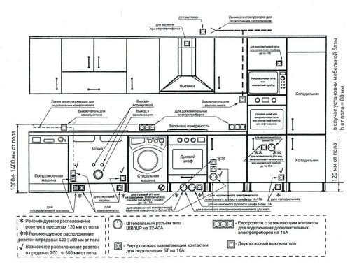
Для наглядного представления правильного расположения розеток на кухне предлагаем ознакомиться с подробной схемой и фотографиями, которые помогут вам лучше понять этот процесс.


































Схема расположения розеток на кухне
На схеме расположения розеток на кухне вы сможете увидеть оптимальные места для установки розеток, учитывая расположение кухонной мебели, рабочих поверхностей и техники. Это поможет вам спланировать эффективное использование электроприборов и обеспечить удобство в повседневной кулинарной деятельности.





























Фотографии с правильным расположением розеток
Дополнительно к схеме, представляем вам большое количество фотографий с примерами правильного расположения розеток на кухне. Они помогут вам визуально представить, как должны быть размещены розетки для обеспечения удобства и функциональности в вашем кухонном пространстве.
Теперь, когда вы знаете об особенностях правильного расположения розеток на кухне, вы сможете спланировать эффективное использование электроприборов и обеспечить безопасность в вашем доме.