19 февраля 2024 /
0 комментариев
/
20 просмотров
Установка раздвижных дверей шкафа купе - это отличный способ обновить интерьер и сэкономить место. Следуйте нашей пошаговой инструкции, чтобы выполнить эту задачу самостоятельно.

1

2

3

4

5

6

7

8

9
Раздвижная система Nova Aristo схема сборки

10

11
Хеттих Slide line 56

12

13

14
Раздвижная система GTV Mito Plus

15

16

17
Опорная система fr-02 для раздвижных перегородок (2400мм) на 3 створки

18

19

20

21

22

23

24
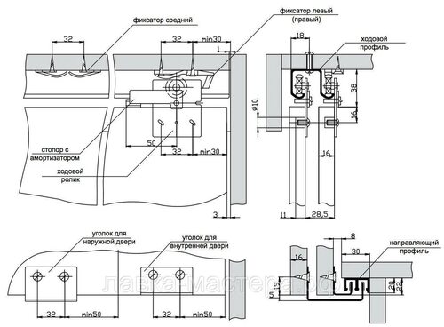
Крепление сдвижной межкомнатной двери

25
Комплект направляющих для раздвижной системы oneprs3

26
Раздвижные двери межкомнатные схема монтажа

27

28

29
Хефеле фурнитура раздвижные системы

30

31
Схема монтажа откатной двери межкомнатной

32

33

34
СКМ 80 схема монтажа

35

36
Опорная система fr-02 для раздвижных перегородок из ЛДСП

37
Комплект фурнитуры Artens mono 150

38

39
Фурнитура для раздвижных системы Aristo

40
Раздвижная система PCA v2000

41

42
Ducasse механизмы раздвижной двери

43
Выдвижные двери механизм снизу

44

45

46
Механизм раздвижной двери MSM Loks
47

48

49
Topline XL Hettich
50

51

52

53
54

55
СКМ 80 раздвижная система

56
Комплект роликов Pallini Pal-4

57
Стопор с амортизатором ст.147.02

58

59

60

61
Комплект роликов универсаль-СН

62
Крепление сдвижной межкомнатной двери

63
Система SKS 51 фурнитура

64

65

66

67
Доводчик Silent-stop

68
Монтажный уголок для верхней направляющей Armadillo Comfort

69
Раздвижная система Herkules Glass 2000

70
Откатные двери межкомнатные механизм схема монтажа

71

72

73

74

75
Mepa SKM-80ay

76
Выкатные двери межкомнатные крепление

77
Компланарная раздвижная система Galileo
78

79
Стойка торцевая профиль Дорс

80

81
Комплект фурнитуры ares2

82
Terno scorrevoli фурнитура

83

84
Фурнитура доводчика Aristo

85
Система Hettich Slide line 55 Plus присадка

86
Подвесная профильная система Modus Air

87

88

89
Casseton двери раздвижные

90

91
Раздвижная система Прайд

92
Комплект фурнитуры ares2

93
Аристо распашные двери система 4 в одном схема сборки

94
Универсальный ролик PML-16un для плиты 16мм

95
Комплект фурнитуры Herkules h2s60/240

96
Доводчик Soft close SMT 75т

97
Доводчик Artens «универсал/синхро»

98
Шкаф Прайм е1 доводчики Hettich

99
Комплект фурнитуры ares ar18 1800мм (Valcomp)

100

101

102
Сдвижные двери межкомнатные механизм

103

104
Ars01/795 стопор верхней направляющей для раздвижной системы Aristo

105
Система Invisible-2 1100 комплект для двери 80-110см весом до 80кг

106
Раздвижная система GTV Mito Plus

107
Комплект роликов на асимметричную дверь (2+2) Firmax

108

109

110
Стопор Нижний для системы Версаль

111
Доводчик Silent-stop
Шаг 1: Подготовка к установке
Перед началом установки необходимо подготовить все необходимые материалы и инструменты. Убедитесь, что у вас есть все комплектующие для раздвижных дверей шкафа купе, а также инструменты для установки.
... (продолжение статьи)