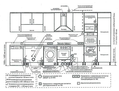
Установка кухонной техники - важный этап ремонта или обновления кухни. Правильное размещение и подключение техники обеспечит комфорт и безопасность в использовании. В этой статье мы представим вам подробную схему установки различных видов кухонной техники, а также расскажем о необходимых шагах для безопасной эксплуатации.






































Установка холодильника
Перед установкой холодильника необходимо выбрать правильное место для его размещения. Желательно, чтобы холодильник находился вдали от источников тепла и прямых солнечных лучей. После выбора места, следует правильно подключить холодильник к электросети и водопроводу. Наши подробные инструкции и фотографии помогут вам выполнить этот процесс без труда.









.jpg)
























Установка плиты
Правильная установка плиты включает в себя подключение к газовой или электрической сети, а также обеспечение необходимого вентиляционного пространства. Мы подготовили для вас подробные схемы и фотографии, чтобы вы могли без проблем установить плиту на кухне.





































Установка посудомоечной машины
Правильная установка посудомоечной машины требует подключения к водопроводу, канализации и электросети. Наши подробные инструкции и фотографии помогут вам выполнить этот процесс без лишних хлопот.