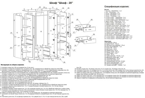
Шкаф купе Рим 120 - это стильное и практичное решение для хранения вашей одежды и предметов. Собрать его самостоятельно легко, если следовать подробной инструкции и использовать наши рекомендации. В этой статье вы найдете пошаговую инструкцию по сборке шкафа купе Рим 120 с подробными фотографиями каждого этапа.
























Шаг 1: Подготовка к сборке
Перед началом сборки убедитесь, что у вас есть все необходимые инструменты и комплектующие. Распакуйте упаковку и проверьте наличие всех деталей, а затем приступайте к сборке, следуя инструкции.
























Шаг 2: Сборка корпуса
Соберите корпус шкафа согласно инструкции, используя предоставленные детали и фурнитуру. Наши подробные фотографии помогут вам правильно ориентироваться на каждом этапе сборки.
























Шаг 3: Установка дверей и аксессуаров
После сборки корпуса приступайте к установке дверей и аксессуаров шкафа. Наши фотографии помогут вам правильно настроить двери и установить все необходимые аксессуары для удобства использования шкафа.























Шаг 4: Завершение сборки
После установки дверей и аксессуаров завершите сборку шкафа, проверьте все соединения и убедитесь, что все элементы шкафа установлены правильно. Готово! Ваш шкаф купе Рим 120 готов к использованию.