Сборка выдвижных ящиков для шкафа купе - это важный этап при создании функционального и удобного шкафа. В данной статье мы расскажем вам, как самостоятельно собрать выдвижные ящики для шкафа купе, используя минимальный инструмент и материалы.

























Шаг 1: Подготовка материалов и инструментов
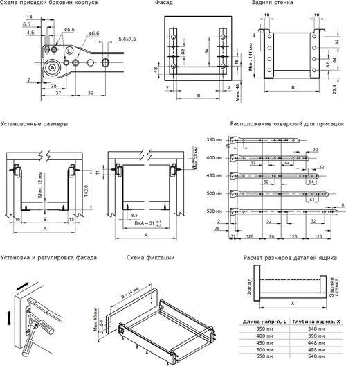
Перед тем как приступить к сборке выдвижных ящиков, убедитесь, что у вас есть все необходимые материалы и инструменты. Вам понадобятся доски подходящего размера, выдвижные направляющие, винты, шурупы, клей, ручной фрезер, пила, отвертка и измерительный инструмент.


























Шаг 2: Сборка корпуса ящика
Начните с сборки корпуса ящика, используя доски и клей. Убедитесь, что все углы сборки точные, чтобы ящик был прочным и ровным. При необходимости, используйте зажимы для фиксации деталей до высыхания клея.

























Шаг 3: Установка выдвижных направляющих
После сборки корпуса ящика, установите выдвижные направляющие, которые обеспечат плавное открывание и закрывание ящика. Убедитесь, что направляющие установлены ровно и параллельно, чтобы избежать заедания ящика.























Шаг 4: Установка ящика в шкаф
После того как ящик собран и оснащен выдвижными направляющими, установите его в шкаф купе. Убедитесь, что ящик легко выдвигается и закрывается, и что он устанавливается ровно и без люфтов.
Следуя этим простым шагам, вы сможете самостоятельно собрать выдвижные ящики для шкафа купе. Не забудьте использовать наши фотографии в процессе сборки, чтобы у вас все получилось легко и быстро!