4 января 2024 /
0 комментариев
/
23 просмотра
Создание столешницы для фрезерного стола является важным этапом для мастера-ремесленника. В данной статье мы представим вам чертежи и подробные инструкции по изготовлению столешницы, которая будет идеально подходить для вашего фрезерного стола.

1
Фрезерный стол для циркулярного станка Bosch

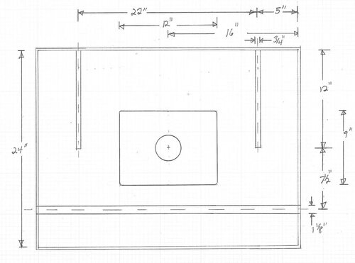
2
Router Table фрезерный стол чертежи

3

4
Router Table фрезерный стол чертежи

5

6
Router Table фрезерный стол чертежи

7

8
Router Table фрезерный стол чертежи

9
Router Table фрезерный стол чертежи

10
Универсальный стол для фрезера и циркулярки чертежи

11
Router Table фрезерный стол чертежи

12
Router Table фрезерный стол чертежи

13
Router Table фрезерный стол чертежи

14
15

16
Router Table фрезерный стол чертежи

17
Фрезерный стол для ручного фрезера чертежи

18
Фрезерный стол Bosch RT-60

19

20
Router Table фрезерный стол чертежи

21
Router Table фрезерный стол чертежи

22

23

24

25
Каретка для фрезера по дереву чертежи

26

27
Router Table фрезерный стол чертежи

28

29

30

31
Router Table фрезерный стол чертежи

32

33
Фрезерный станок из ручного фрезера своими руками чертежи

34
Фрезерный стол Fortune #2 #023535

35
Лифт для ручного фрезера своими руками чертежи

36
37
Черте цыркулярного станка

38
Приспособления для кромочного фрезера своими руками чертежи

39
Mini Router Table Plans

40

41
Лифт для фрезера чертежи

42
Router Table фрезерный стол чертежи
43
Универсальный стол для фрезера и циркулярки Bosch

44

45
Пластина под циркулярку 71 *380 крепеж

46
Router Table фрезерный стол чертежи

47
Горизонтальный фрезерный стол для ручного фрезера с чертежами
48

49

50
Стол для фрезера по дереву rc700

51

52
Лифт для фрезера своими руками с чертежами

53
Building 4 in 1 Workshop (homemade Table saw, Router Table, Disc Sander, Jigsaw Table)

54
Bosch GTS 10 XC professional 0601b30400

55

56
Фрезерный стол Fortune #2 #023535

57

58
Параллельный упор Incra

59
Фрезерный стол Bosch RT-60

60
Циркуль для фрезера Макита rt0700 чертежи

61
Фрезерный стол для циркулярного станка Bosch

62
Фрезерный стол 800x600x900 мм CMT 999.110.00

63
Фрезерный стол Вуд мастер

64
Стол для фрезера Калибр СФ-360 00000046086

65
Пластина для фрезера ДИОЛД В стол

66
Mgj001 многофункциональный портативный деревообрабатывающий верстак

67
Homemade Table saw чертежи

68
Фрезерный стол

69
Router Tips and Tricks

70
Router Table фрезерный стол чертежи

71

72

73
Table saw циркулярка

74
Универсальный стол для фрезера и циркулярки Bosch

75

76
Стол для торцовки своими руками с чертежами

77
Router Table фрезерный стол чертежи

78
Распиловочный станок из циркулярной пилы Makita 5008mg чертежи

79
Charnwood's w012 Router Table

80
Тиски столярные для верстака своими руками чертежи с размерами

81
Монтажная пластина для фрезера своими руками

82
Лифт для пилы циркулярки

83
Router Table фрезерный стол чертежи

84
Распиловочный станок из циркулярной пилы Makita 5008mg чертежи

85
Charnwood's w012 Router Table

86
Тиски столярные для верстака своими руками чертежи с размерами

87
Монтажная пластина для фрезера своими руками

88
Лифт для пилы циркулярки

89

90
Приспособление для фрезерования пазов ручным фрезером по дереву

91
Стол для фрезера

92
Упор для ручного фрезера своими руками

93

94
Кондуктор приспособы для фрезера

95
Фрезерный стол Вуд мастер
96
Фрезерный стол Лепилкина

97
Фрезерный стол Bosch RT-60

98
Фрезерный стол Skil

99
Стол для циркулярной пилы. Circular Table saw

100
Фрезерный стол Fortune #2 #023535

101
Стол фрезерный Кратон MT-20-01

102
Кондуктор для ручной циркулярной пилы чертежи

103
Пластина под циркулярку 71 *380 крепеж
.jpg)
104

105

106

107

108
Гребенка прижимная для фрезера своими руками
Шаг 1: Подготовка необходимых материалов и инструментов
Прежде чем приступить к созданию столешницы, убедитесь, что у вас есть все необходимые материалы и инструменты. Вам понадобятся...
...