Установка проводки на кухне является одним из ключевых этапов ремонта. Правильно выполненная проводка обеспечит безопасность и удобство использования электроприборов. В данной статье мы рассмотрим основные этапы установки проводки на кухне и дадим полезные рекомендации.






















































Подготовка к установке проводки
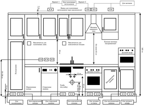
Перед началом установки проводки необходимо провести подготовительные работы. Это включает в себя разработку электрической схемы, выбор необходимого кабеля и распределительной коробки, а также подготовку необходимых инструментов.
Далее следует установка розеток, выключателей и осветительных приборов. Важно учитывать правила безопасности и соблюдать нормы проводки, чтобы исключить возможность аварий и неисправностей.






















































Завершение работ
После установки проводки необходимо провести проверку целостности изоляции, правильности подключения и работоспособности электрооборудования. В случае обнаружения неполадок следует немедленно устранить их.
Важно помнить, что установка проводки должна проводиться только квалифицированными специалистами, соблюдающими все нормы и правила безопасности.