3 января 2024 /
0 комментариев
/
55 просмотров
При планировке спальни, гардеробной и ванных комнат важно учитывать функциональность, комфорт и стиль. В данной статье мы поделимся идеями и советами по созданию уютных и функциональных пространств, а также представим множество фотографий для вдохновения.

1

2

3

4

5

6

7

8

9

10

11

12
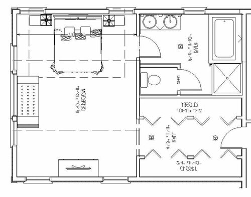
План спальни с гардеробом

13

14

15

16

17

18

19

20

21
Интерьер гардеробной

22

23

24

25

26

27

28

29

30

31

32

33

34
Гардеробная и санузел в спальне

35

36

37

38

39

40

41
Спальная с ванной комнатой и гардеробной

42
Гардеробная в ванной комнате

43
Гардеробная в санузле

44

45

46

47
Гардеробная в санузле

48
Гардеробная с туалетом

49

50

51

52
Проходная гардеробная в спальне

53
Проходная гардеробная в спальне

54

55
Гардеробная в доме из бруса

56
Ванна с гардеробной

57

58

59

60

61

62
Гардеробные в американском стиле

63
Гардеробная с туалетом

64

65
Проект гардеробной

66
Черно белая гардеробная

67
Гардеробная комната

68

69
Проходная гардеробная комната

70

71

72
Гардеробная вс спальне

73
Шикарные спальни с гардеробной и ванной

74
Гардеробная в ванной комнате

75
Гардеробная в ванной комнате

76

77

78
Гардеробная в спальне

79
Санузел в мастер спальне

80
Интерьер спальни с гардеробной в современном стиле

81

82

83
Гардеробная в санузле

84

85

86

87
План спальни с размерами

88
Проходная гардеробная в ванную

89
Гардеробная в частном доме

90
Гардеробная в спальне план

91
Проекты элитных квартир

92
Мужской гардероб

93
Дизайнерские гардеробные

94

95
Гардеробная в гостиной комнате 20 кв

96

97
Гардеробная вс спальне

98

99

100

101
Комната с ванной и гардеробной

102

103

104

105

106

107

108
Стеклянная гардеробная в спальне

109

110
Гардеробная в спальне

111
Гардеробная комната в спальне

112

113

114
Выбор мебели и расположение помещений
При планировке спальни, гардеробной и ванных комнат важно учитывать не только стиль, но и практичность. Размещение мебели, выбор материалов и цветовая гамма играют важную роль в создании гармоничного интерьера.