Правильное расстояние между полками в гардеробе играет важную роль в организации пространства для хранения одежды, обуви и аксессуаров. Оптимальное расположение полок поможет максимально эффективно использовать доступное пространство и упростит хранение и поиск вещей.























































Примеры расстановки полок в гардеробе
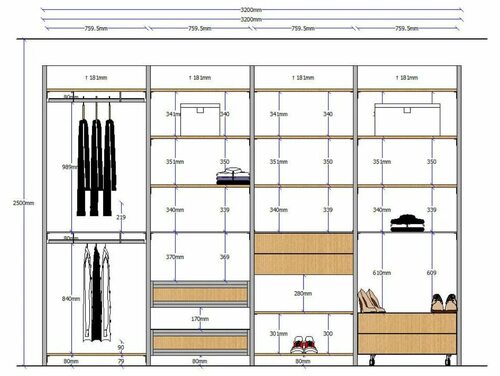
Для начала определите, какие предметы вы планируете хранить на полках. Если это будут складные вещи, такие как свитера, футболки, рубашки, то расстояние между полками может быть менее 30 см. Для более объемных предметов, например, курток или пальто, рекомендуется устанавливать полки на расстоянии не менее 40-50 см друг от друга.
Помните, что в гардеробе также должно быть место для длинной одежды, поэтому оставьте свободное пространство между верхней полкой и штангой для вешалок.
Подбирая оптимальное расстояние между полками, учитывайте особенности вашей одежды, размеры гардеробной комнаты и личные предпочтения.























































Практические советы
Для удобства организации пространства в гардеробе рекомендуется использовать подвижные полки, которые можно регулировать по высоте. Это позволит вам легко изменить расстояние между полками в зависимости от ваших потребностей и предметов, которые вы хотите хранить.
Используйте корзины, ящики или органайзеры для мелких предметов, чтобы эффективно использовать пространство на полках и избежать беспорядка.
Не забывайте о свете! Хорошее освещение в гардеробе поможет вам лучше видеть и организовать свою одежду.
Надеемся, что эти советы помогут вам создать удобное и функциональное пространство в вашем гардеробе. При выборе расстояния между полками обратите внимание на ваши потребности и особенности вашей коллекции одежды, чтобы сделать хранение вещей максимально удобным и эффективным.