При создании проекта бани в современном стиле с гостевой комнатой важно учесть функциональность, комфорт и эстетику. Этот проект предлагает инновационные решения для уютного отдыха и приема гостей.

























































Инновационные решения
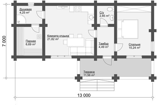
В проекте бани в современном стиле с гостевой комнатой используются современные материалы и технологии, позволяющие создать уникальное пространство для отдыха и релаксации. Интеграция гостевой комнаты позволяет расширить функциональность бани и сделать ее местом для семейного отдыха и приема гостей.
Благодаря использованию стекла, дерева и металла в интерьере, проект бани приобретает современный и стильный облик, который сочетается с функциональностью и комфортом.


























































Дизайнерские решения
Дизайн проекта бани в современном стиле с гостевой комнатой предлагает разнообразные решения для создания уникального интерьера. От современных элементов декора до инновационных систем управления освещением и климатом – в этом проекте учтены все детали для создания комфортной и стильной обстановки.
Интеграция гостевой комнаты позволяет создать полноценное пространство для отдыха и развлечений, что делает этот проект бани идеальным выбором для современных семей и ценителей комфорта.