Установка мебельных петель 35 - важный этап при изготовлении мебели. Эта процедура требует точности и внимания к деталям. В данной статье мы подробно рассмотрим процесс установки мебельных петель 35 и предоставим пошаговые фотографии, чтобы вы могли легко освоить этот навык.





























Шаг 1: Подготовка к установке
Перед началом установки мебельных петель 35 необходимо подготовить все необходимые инструменты и материалы. Убедитесь, что у вас есть отвертка, рулетка, маркер, шурупы и, конечно же, сами петли. Подготовьте место для работы, обеспечьте хорошее освещение и удобное расположение мебели.


























.jpg)



Шаг 2: Отметка места установки
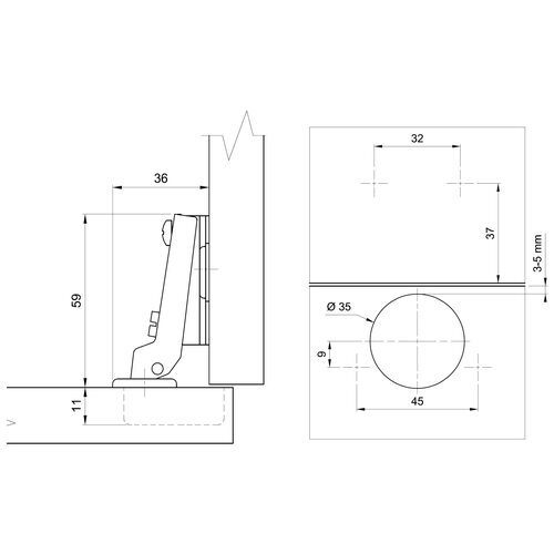
Используя маркер и рулетку, отметьте места, где будут располагаться петли на двери или ящике. Обязательно учтите размеры петель и расстояние до края мебели для точной установки.







.jpg)

























Шаг 3: Установка петель
Теперь приступаем к самой установке. Закрепите петли на мебели с помощью шурупов и отвертки, следуя инструкции по установке, предоставленной производителем. Убедитесь, что петли надежно закреплены и дверь или ящик открываются и закрываются плавно.
Поздравляем, установка мебельных петель 35 завершена! Теперь вы можете наслаждаться функциональной и красиво отделанной мебелью. Надеемся, что наша инструкция и фотографии помогли вам освоить этот процесс.